钢筋通常情况下是非常耐蚀的,因为钢筋在高碱性的混凝土中表面会形成一层钝化膜,这层钝化膜可以有效的阻止钢筋的腐蚀发生。然而由于混凝土的碳化和氯离子的侵蚀导致钢筋表面钝化膜的抗腐蚀性能降低,从而导致混凝土结构过早失效破坏。
这些失效会导致巨大的经济损失也严重危害着公共安全,所以研究钢筋腐蚀尤为重要!
钢筋腐蚀研究方法
1物理检测
电阻棒法、涡流与磁通减量(涡流探测) 法、声发射探测法、射线法、红外热像法等。
2电化学检测
自然电位法、线性极化法(或极化电阻法)、交流阻抗谱法、恒电量法、混凝土电阻法、电流阶跃法等。
实验室评价方法
迄今为止,开发的腐蚀性能试验研究方法主要有:快速宏电池试验、动电位扫描试验、恒电位极化试验、盐雾腐蚀试验、干湿循环暴露试验、ASTM G109试验等。
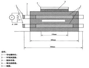
1快速宏电池试验
快速宏电池加速腐蚀试验是美国堪萨斯州大学的Martinez等在1990年发明的,测试装置如图1所示。测试温度为室温约为20-24℃,测试15周。
测试开始后,第一个星期,每隔一天记录一次读数,此后,每隔一个星期记录一次读数。
应用以下公式将电压降转换成腐蚀速率(μm/a):
腐蚀速率 = 11.6·ic = 11600·V/(A·R)
式中:
ic:腐蚀电流密度(μA/cm2);
V:10欧姆电阻上的电压降(mV);
R:电阻(Ω);
A:阳极钢筋裸露的面积(cm2)。

图1 快速宏电池测试示意图
2极限点蚀电位测定
动电位扫面试验是将试样浸泡在试验介质中,对其进行正向和反向动电位扫描,测定试样的点蚀电位。
通过点蚀电位的测量可以评定钢点蚀的能力,在添加不同浓度的氯离子后,点蚀电位突然下降的氯离子浓度通常被认为临界氯离子浓度。
3恒电位极化试验
恒电位极化是将试样持续浸泡在试验介质中,对其进行恒电位阳极极化,根据测量的电流密计算试样的电流密度。规定当电流密度达到某一数值时,即表示开始腐蚀,此时的氯化物的总量即为氯化物的极限浓度。
John R. Scully等认为,实验室测定氯化物极限浓度最好的方法是氯化物浓度不变的恒电位试验,极化电位为+100mVSCE或+200VSCE。
4盐雾加速腐蚀试验
盐雾加速腐蚀试验是将钢筋暴露在人造盐雾气氛中进行加速腐蚀试验,通过对钢筋腐蚀后的样品进行失重和形貌分析,评价钢筋的耐腐蚀性能。
目前国内外的标准主要有GB/T 10125-1997 GB/T 10125-1997 《人造气氛腐蚀试验盐雾试验》,ASTM B117-2009 “Standard Practice for Operating Salt Spray (Fog)Apparatus” 和国际化组织标准ISO 9227-2006 “Corrosion tests in arificial atmosphere-Salt spray tests”。
盐雾腐蚀试验的环境与混凝土环境差异较大,而且条件非常苛刻,一般只用于不同钢筋腐蚀性能之间的比较。
5干湿循环暴露试验
冶金部于2014年发布了YB/T 4367-2014《钢筋在氯离子环境中腐蚀试验方法》和YB/T 4368-2014《钢筋在工业大气环境中腐蚀试验方法》。这些标准都是采用周浸干湿交替腐蚀试验获得耐蚀钢筋和普通钢筋的平均腐蚀速率,然后通过相对腐蚀速度的对比来确定钢筋耐蚀性的差异。
需要指出,上述标准中的试验方法在一定程度上可以评价出钢筋的耐蚀性差异,但是周浸腐蚀试验方法通常用于评价金属材料的耐大气腐蚀性能,如果用于评价混凝土中钢筋的腐蚀也许不能反映真实的腐蚀过程。
另外,混凝土中钢筋处于强碱性环境,和上述标准中的中性(模拟氯离子环境)和酸性(模拟工业大气环境)环境是有很大差异的。
6钢筋在混凝土中的氯离子试验方法
美国材料测试协会标准 ASTM G109最初是用来研究化学添加剂对钢筋腐蚀性能影响的试验标准,近20年多来被用广泛的应用于耐腐蚀钢筋性能的评价。尽管试验的周期需要1-2年,但是由于腐蚀环境相当恶劣,可以模拟桥梁暴露30-40年。
我国近期发布的YBT 4369-2014 《钢筋在混凝土中耐氯离子腐蚀性能测试方法》也采用ASTM G109中的试验方法来评价钢筋在混凝土中耐氯离子腐蚀的性能。
图2和图3为ASTM G109试验采用的试件示意图。

图2 ASTM G109试验试件示意图

图3 混凝土试件俯视图
结论与展望
目前,我国耐蚀钢筋的研究仍处于实验探索阶段,关于耐蚀钢筋耐蚀性评估及其混凝土结构寿命预测等研究领域,许多问题尚需深人细致的研究。低合金耐蚀钢筋是否可保证混凝土结构百年服役寿命,仍缺乏严格论证的可行性分析,但已开展的试验探索研究已展示了其广阔优越性。改变钢筋基体成分,开发钢筋替代材料,从根本上解决钢筋锈蚀问题,已成为今后混凝土结构耐久性提升技术的发展趋势。
钢筋腐蚀试验的方法有很多种,选择应用的时候要考虑几方面的因素:试验方法的适用范围,试验所需要的时间,试验的成本以及试验的复杂性等,从而有效快速的评价钢筋的耐蚀性差异。
免责声明:本网站所转载的文字、图片与视频资料版权归原创作者所有,如果涉及侵权,请第一时间联系本网删除。
官方微信
《中国腐蚀与防护网电子期刊》征订启事
- 投稿联系:编辑部
- 电话:010-62316606-806
- 邮箱:fsfhzy666@163.com
- 中国腐蚀与防护网官方QQ群:140808414



