摘 要:为了消除区域阴极保护系统对线路阴极保护系统的干扰,使线路阴极保护系统能够正常恒位运行。利用阴极保护电位分布数值模拟及干扰模拟计算的三维几何模型对干扰进行了分析,并通过现场测试对模拟进行了验证。根据模拟及现场测试的结果对干扰采取了有效的治理,消除了区域阴极保护系统对线路阴极保护系统的干扰,将线路恒电位仪的输出参数恢复至干扰前的水平。
关键词:区域阴极保护 阳极干扰 数值模拟 现场检测 处理
压气站是天然气生产和输送中的一个重要环节,站内一般包含了工艺管网、防雷接地网等在内的多种埋地金属构筑物。为了保护站内埋地管网及防雷接地网的安全长效运行,近年来区域阴极保护技术发展迅速[1-2]。由于站内阴极保护系统所保护的埋地构筑物多为裸钢或防腐层较差的钢结构,而站外阴极保护系统所保护的干线防腐层较好,站内、外两套阴极保护系统所需的保护电流存在较大差异,因此常采用绝缘接头将站内、外管线电隔离,即站场内外各自采用独立的阴极保护系统。由于站内阴极保护系统通常距离站外干线较近,如果设计不合理,站内阴极保护系统会对站外干线阴极保护系统产生干扰,引起干线阴极保护系统输出异常,无法达到保护效果,目前国内对于不同阴极保护系统间干扰问题的检测和处理仍处于研究探索阶段[3-4]。
某压气站区域阴极保护系统采用浅埋阳极地床的外加电流保护方式,通过3路浅埋阳极地床来保护站场内的接地网、埋地工艺管线及压缩机区域埋地金属构筑物。现场运行发现,站场区域阴极保护系统开启后,引起该站所辖干线阴极保护系统恒电位仪输出电压电流为零,同时下游出站端管线极化电位较正常保护下管线的极化电位正移0.5 V左右。通过开展现场测试和试验明确了干线阴极保护系统的干扰源,并进行了有效治理,将干线恒电位仪的输出参数恢复至干扰前的水平。
1站内区域阴极保护系统对站外干线阴极保护系统干扰排查
某压气站站场区域阴极保护系统主要由1套4路恒电位仪、柔性阳极地床、高硅铸铁浅埋辅助阳极地床、参比电极、馈流点和测试点、分流箱、连接电缆等构成。每路的设计保护区域:第1回路保护站区接地系统;第2回路保护工艺装置区、收发球筒区、放空区及其周围管网;第3回路保护压缩机区及其周围管网;第4回路备用。设备采用福建三明PS-3F型恒电位仪,额定输出功率为50 V/30 A。
站场区域阴极保护系统开启后,干线阴极保护系统恒电位仪输出电压电流即为零,为确认是区域阴极保护系统恒电位仪的哪一路对线路阴极保护系统存在干扰,将3路区域阴极保护系统恒电位仪分别通断,观察线路阴极保护系统恒电位仪的输出,见表1:
表1 干线阴保恒电位仪输出值

由上表可以看出,第2路区域阴极保护系统恒电位仪开启后,干线阴极保护系统恒电位仪输出电压电流变为零,这是因为线路控制参比电极一般放置在出站绝缘接头站外侧附近,且处于第2路区域阴极保护系统阳极地床的阳极电场影响区,导致有杂散电流从该段管道上流入,杂散电流的流入导致极化增大,恒电位仪为维持设定的控制电位,输出电压和输出电流自动降低为零。干线阴极保护系统恒电位仪无输出,最终导致站场上下游管线实际得不到阴极保护,增大了管线发生腐蚀的风险。
2干扰及缓解措施的数值模拟分析
根据该站的平面布置图、埋地管网分布图、接地网分布图情况建立了阴极保护电位分布数值模拟及干扰模拟计算的三维几何模型,通过计算控制参比电极的可能移动位置来保证线路阴极保护系统能以恒电位模式正常工作,为下一步的调整和现场实验测试提供一定的借鉴指导作用。其计算过程如下。
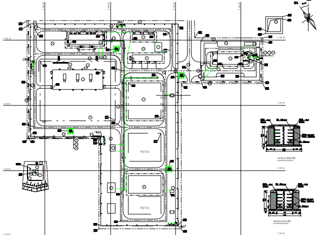
该站的平面分布图、管网分布图及站内接地网分布图如图1~3所示。

图1 压气站平面分布图


图2 压气站管网分布图

图3 压气站接地网分布图
根据图1~3所示的基础资料建立了该站区域阴极保护数值模拟及干扰模拟计算的三维模型,并进行了边界元网格划分,如图4和5所示。

图4 压气站站内外干扰三维计算模型

图5 压气站站内外干扰三维计算模型的网格分布
利用软件对站内外干扰模型进行数值模拟计算,研究阳极干扰区的距离。
首先模拟计算了不存在干扰时,站场附近线路的阴极保护电位分布,如图6所示。由图可见,不存在干扰时,站场附近线路能受到良好的阴极保护,且保护电位能达到-1.0 V左右,对应云图中色块的颜色为淡绿色。

图6 不存在干扰时站场附近线路阴极保护电位分布
当存在干扰时,即站场区域阴保系统输出电流为30 A时,站场附近出站和进站线路的阴极保护电位分布分别如图7和图8所示。由图可见,存在干扰时,站场附近线路由于受到阳极干扰的影响而发生电位负移,但未发生过保护的情况。以淡绿色为无干扰时的正常电位标志,由图可见该阳极干扰的影响距离可能达到200~300 m,此时应将参比电极移动到300 m以外。

图7 存在干扰时站场附近出站线路阴极保护电位分布

图8 存在干扰时站场附近进站线路阴极保护电位分布
3干扰程度及范围
3.1干扰程度
为保证站场上下游管线得到有效的阴极保护,需改变目前线路阴极保护系统控制参比电极的位置,使线路阴极保护系统的恒电位仪能够正常恒电位工作。尽管改变控制参比电极的位置,能够使恒电位仪能够正常工作,但位于区域阴极保护系统阳极地床影响区的管线仍然受阳极干扰[5-6],为考察影响区内的管线受干扰的程度,调整区域阴极保护系统恒电位仪的输出,见表2:
表2 区域阴保恒电位仪输出参数表

同时调整干线阴极保护系统恒电位仪的输出,使得其输出电流维持在未受干扰的水平,然后与区域阴极保护系统恒电位仪同步通断,测得干线进出站绝缘接头两端的电位如表3所示:
表3 进出站绝缘接头两端电位测量表

测试结果表明,若将干线阴极保护系统的控制参比电极移动到阳极干扰区之外,同时维持干线阴极保护系统恒电位仪输出电流在未受干扰的水平,测得干线出站绝缘接头站外管段极化电位为-1.20 V,干线未发生过保护的情况,这说明区域阴极保护系统未对站外管线的极化电位产生影响。
3.2干扰范围
为考察区域阴极保护系统对线路阴极保护系统的影响范围,将区域阴极保护系统恒电位仪调整为通断运行,沿管线出站下游方向测量干线不同点的通电电位,见下表:
表4 站内外干扰影响范围测量表

由上表可以看出,当便携式参比电极放置在距出站绝缘接头下游350 m处时,站内区域阴极保护系统恒电位仪通断电运行不会引起干线通电电位的变化,说明区域阴极保护系统对线路阴极保护系统的影响范围为出站350 m以内,与模拟计算结果相一致。
4干扰问题处理
根据前期测试及模拟计算结果,为消除区域阴极保护系统对线路阴极保护系统的干扰,需将线路控制参比电极沿出站管线下游方向移动350 m,并重新敷设参比电缆,与原有参比电缆连接。由于原有参比电缆出站后无法准确定位埋深及走向,且站内外落差有6m,因此不宜在站外开挖查找电缆。在站内管线出站位置,沿管线开挖便于查找原有参比电缆。
线路控制参比电极迁移前后,区域阴极保护系统恒电位仪及线路阴极保护系统恒电位仪输出参数如下表:
表5 恒电位仪输出统计表

由上表可以看出,线路控制参比迁移后,线路阴极保护系统恒电位仪基本不受区域阴保系统的影响。
5结论
图片
(1)第2路区域阴极保护系统恒电位仪开启后,干线阴极保护系统恒电位仪输出电压电流为零,说明第2路区域阴极保护系统对线路阴极保护系统存在阳极干扰;
(2)区域阴极保护系统对站外阴极保护系统的阳极干扰未引起站外管线的极化电位过负的现象;
(3)经过数值模拟计算及现场实际测试,区域阴极保护系统对干线阴极保护系统的影响范围为出站350 m以内;
(4)干线控制参比迁移后,干线阴极保护系统恒电位仪基本不受区域阴极保护系统的影响。
参考文献
[1] 王燕。某油库区域阴极保护实践[J].腐蚀与防护;2011,32(7):562-566
[2] 张俊义,刘志刚,张永盛等。区域性阴极保护实施过程中的几个问题[J].油气储运;2000, 19(2):51-52
[3] 陈航的。长输油气管道工艺站场的区域性阴极保护[J].腐蚀与防护;2008, 29(8):485-487
[4] 刘玲莉,陈洪源,刘明辉,刘桂春。输油气站区阴极保护中的干扰与屏蔽[J].管道技术与设备。2005,2:31-33
[5] I.A. Metwally, H.M. Al-Mandhari, A. Gastli, Z. Nadir. Factors affecting cathodic-protection interference[J]. Engineering Analysis with Boundary Elements,2007(31):485-493
[6] F. Brichau, J. Deconinck, and T. Driesens.Modeling of Underground Cathodic Protection Stray Currents[J]. CORROSIONENGINEERING,1996,52(6):480-488
作者简介
赵康,男,1987.4.5,2008年本科毕业于重庆大学材料成型及控制工程,现就职中石油西部管道公司管道处,完整性管理,副处长。
免责声明:本网站所转载的文字、图片与视频资料版权归原创作者所有,如果涉及侵权,请第一时间联系本网删除。
相关文章
官方微信
《中国腐蚀与防护网电子期刊》征订启事
- 投稿联系:编辑部
- 电话:010-62316606-806
- 邮箱:fsfhzy666@163.com
- 中国腐蚀与防护网官方QQ群:140808414
点击排行
PPT新闻
“海洋金属”——钛合金在舰船的
点击数:7130
腐蚀与“海上丝绸之路”
点击数:5741



